Confronta gli annunci

Descrizione

Moncalieri – Affitto uffici attrezzati in complesso multipiano

In Moncalieri si propone in locazione complesso cielo-terra multipiano con ingresso indipendente e ascensore.

Sono disponibili uffici attrezzati in ottime condizioni.

L’immobile è dotato di:

Parcheggio pubblico

Posti auto privati interni

Servizi igienici a norma, accessibili a persone con disabilità

Impianto di climatizzazione

Riscaldamento centralizzato con contabilizzatori

Basse spese di gestione

Soluzione ideale per uffici direzionali, studi professionali, servizi clinici, centro medico, attività sanitarie o uso pubblico.

Disponibilità immediata. Per informazioni Sig. Tabatabai 3357715975

Dettaglio

  • Icon
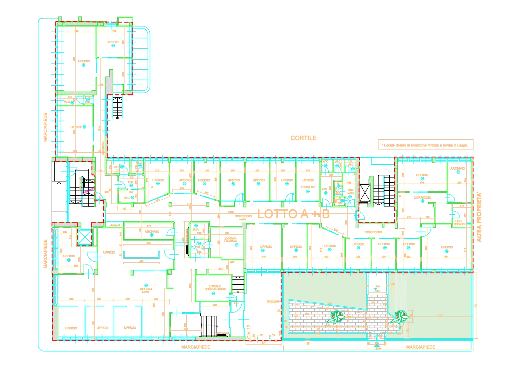
    Superficie
    940 m²

Aggiornato su Febbraio 6, 2026 a 12:10 pm

Indirizzo

  • Indirizzo: Corso Trieste
  • Città: Moncalieri
  • Stato / Paese: Torino
  • Quartiere: Borgo San Pietro
  • Nazione: Italia

Planimetrie

  • Piano Rialzato
img

Piano Rialzato

Prezzo:

  • Icon
    Stanze:
  • Icon
    Bagni:
  • Icon
    Dimensione:

Contatta l'agente

Tiziana
  • Tiziana
  • +393357715973
  • +39011.650.2132
Visualizza annunci

Richiedi informazioni su questa proprietà